COMING SOON, PRECISION DRAFTING & DESIGN WILL BECOME, PREMIER ARCHITECTURAL DESIGN
A house plan is a set of construction or working drawings (sometimes still called blueprints) that define all the construction specifications of a residential house such as dimensions, materials, layouts, installation methods and techniques. At Precision Drafting & Design, I will transform Your Vision into an accurate, detailed set of builder friendly construction drawings that will make the building process run smoothly.

Tenant finish-out plans are a set of construction or working drawings that detail the interior build out, alteration or reconfiguration of an existing commercial building space. This type of project occurs within an existing structure and does not include the construction of any new structures. Tenant finish-out plans may be needed for individual tenants of a new multi unit lease space but are often the result of a change in how an existing building space is being used, for example, to accommodate a new business or tenant. At Precision Drafting & Design, I can create a plan that will customize any space to fit the specific needs of your business.

As-Built Surveys and Plans provide a current, accurate view of existing commercial and residential buildings and sites. These drawings can be used for marketing purposes or as a starting place for a remodeling project or building addition. At Precision Drafting & Design, I use the latest LDM technology, digital photography and AuotCAD LT software to accurately measure and document existing building and site conditions.
Conceptual design is the first step of the design process, in which the broad outlines of form and function of a site, building or group of buildings are articulated. Conceptual designs are scalable drawings that define the basic parameters of the project. They are usually void of detail, dimensions, and technical notes so the design can reviewed and modified with ease. These designs are the preliminary stages of development and are intended to explore ideas and their feasibility. Their primary function is to establish a starting point. At Precision Drafting & Design I can create conceptual drawings to help you visualize the design possibilities and jump start your project.

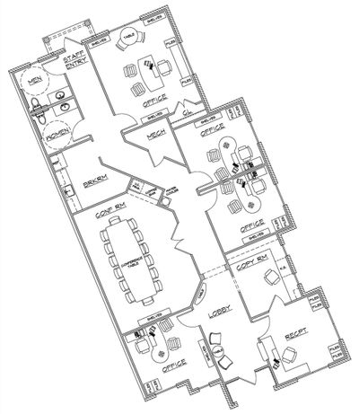
Space planning is an in-depth analysis of how physical space is used within a building and is an important component to the overall design process. Space planning considers the purpose of a space along with who will use it and identifies the required elements of the space such as furniture, equipment, accessories and millwork as well as the location of doors, windows and structural elements. Space plan design utilizes scalable drawings to place and arrange these components to ensure the most efficient use of a given space. Whether your project is a new build or an existing space, Precision Drafting & Design can develop a space a plan that will provide efficient and effective use of your space.

Shop drawings are drawings or a set of drawings produced by a manufacturer, contractor, or fabricator and are typically required for prefabricated components, most commonly cabinets and millwork. The shop drawing is the manufacturer’s or the contractor’s drawn version of information shown in the construction documents and normally shows more detail than the construction documents. It is drawn to explain the fabrication and/or installation of the items to the production and installation crews. Because shop drawings facilitate the fabrication and installation along with the architect’s and engineer’s approval of the product, they should be as clear and complete as possible. My experience with the Architectural Woodwork Institutes Quality Certification Program allows Precision Drafting & Design to be able to produce shop drawings that meet AWI's high standards.

Project Management is a professional service that uses specialized, project management techniques to oversee the planning, design, and construction of a project, from its conception to completion. The purpose of PM is to monitor different aspects of the project, which include facilitating design tasks, providing technical advice for architecture concepts, and ensuring the project is in compliance with building plans. Whether you are a builder, general contractor, or the project owner, Precision Drafting & Design has the knowledge and skills needed to turn your design vision into reality.



